Spacecraft Mfg 的热门建议 |
- Space.
Crafted - Spacecraft
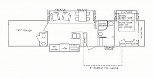
5th Wheel - Space Planes
Air Crafts - How to Add Craft Space
to Small Bedroom - 5th Wheel with
Office Space - 5th Wheel
RV - Spacecraft
Custom RV Semi-Trailer Tour - 5th Wheel RV
Brands - Amazing Spacecraft
Custom 5th Wheel - Spacecraft
Semi Trailer RV Tour - Custom Built
RVs - Show Hauler
RVs - Semi Truck RV
Conversion - New Horizon
5th Wheel - Apollo
Test Kit - Blonde Tall White
Spacecraft - Apollo Space
Training - Astronomy Related
RV Parks - Custom
Motorhomes - Foot Factory
Kelly Space - Custom Semi
RVs - Award RV
Trailer - Largest 5th Wheel
Made - Custom Built
Toy Hauler - DIY Fighter
Cockpit - Largest 5th Wheel
Camper - Space Shuttle
3D Puzzle - Spacecraft
RV for Sale - Apollo Command
Module In-Flight - Custom Built Trailer
Homes - Semi Truck
Camper - Space Sirens2
Game - Semi
Camper - Jarret
Moon - Spacecraft
Factory - NASA
Orion - Custom RV Builder
in Las Vegas - 99
Moons - Viga
Moon - Spacecraft Mfg
Tour - Spacecraft
RV - Spacecraft
RVs Mfg - Spacecraft
- RV
Hauler - Custom 5th
Wheel RV - Unique Camper
Trailers - Space
Crafted - 5th Wheel
53 FT - Spacecraft
Campers - Semi
RVs
观看更多视频
更多类似内容
